
INCH-POUND
AN6207 REV 5
05 April 2011
SUPERSEDING
AN6207 REV 4
29 October 1945
DETAIL SPECIFICATION SHEET
VALVE, CHECK, 1500 PSI, HYDRAULIC
Inactive for new design after 22 January 1999
This specification is approved for use by all Departments and Agencies of the Department of
Defense.
The requirements for acquiring the product described herein shall consist of this specification
sheet and MIL-V-5524.
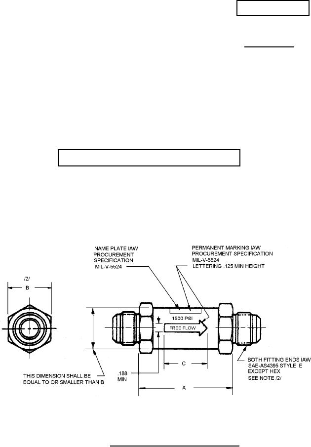
FIGURE 1. Valve dimensions and configuration.
AMSC NA
FSC 4820