
MIL-PRF-12125H
conform to requirements. Applicable records shall include drawings, specifications, design data,
receiving inspection records, processing and quality control standards, vendor catalogs and
certifications, industry standards, test reports, and rating data.
4.4.2 Examinations. Conformance to 3.2 through 3.10 shall be determined by
examination for the defects listed in table V. Examination shall be visual, tactile or by
measurement with SIE.
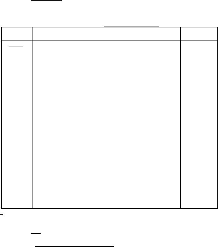
TABLE V. Classification of defects.
Method of
Category
Defect
examination
Major:
101
Materials not as specified (see 3.2).
Visual
102
Materials not resistant to corrosion and deterioration, or treated
Visual
to be resistant to corrosion and deterioration, for the
applicable storage and operating environments (see 3.2.1).
103
Dissimilar metals, as defined, are not effectively insulated from
Visual
each other to meet all requirements (see 3.2.1.1).
104
Used, rebuilt or remanufactured components, pieces, or parts
Visual
incorporated in the valves (see 3.2.1.2).
105
Locking mechanism not as specified (see 3.3).
SIE 1/
106
Flow passage not as specified (see 3.3).
Visual
107
Valve body and bonnet not as specified (see 3.3.1).
SIE
108
External working parts not as specified (see 3.3.2).
SIE
109
Seat rings not as specified (see 3.3.3).
Visual
110
Disks not as specified (see 3.3.4).
Visual
111
Stems not as specified (see 3.3.5).
Visual
112
Holes in casting (see 3.5).
Visual
113
Style not as specified (see 3.5 and 3.6).
Visual
114
Threads or flanges not as specified (see 3.5 and 3.6).
SIE
115
Human factors engineering not as specified (see 3.7).
SIE and
Visual
116
Treatment, painting, or color not as specified (see 3.8).
Visual
117
Identification marking missing, incomplete, or not as specified
Visual
(see 3.9).
118
Workmanship not as specified (see 3.10).
SIE and
Visual
1/ SIE = Standard Inspection Equipment.
4.4.3 Test.
4.4.3.1 Operation and hydrostatic pressure. To check conformance to 3.4, the operation
and hydrostatic pressure test shall be performed as follows:
8
For Parts Inquires call Parts Hangar, Inc (727) 493-0744
© Copyright 2015 Integrated Publishing, Inc.
A Service Disabled Veteran Owned Small Business