
MIL-PRF-25675C
L
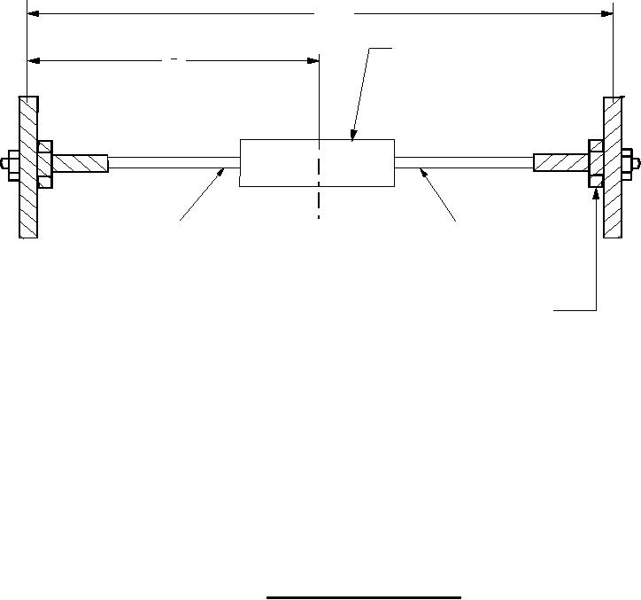
VALVE TEST SPECIMEN
L
2
Strain gage
Strain gage
SUPPORTS, BOTH
ENDS SEE NOTE 3
NOTE: 1. DIMENSIONS ARE IN INCHES.
2. TOLERANCES: ±1%
3. SUPPORTS SHALL PROVIDE FREE SWIVELING ACTION.
FIGURE 3. Flexural strength test setup
13
For Parts Inquires call Parts Hangar, Inc (727) 493-0744
© Copyright 2015 Integrated Publishing, Inc.
A Service Disabled Veteran Owned Small Business